Продается коммерческая, 1088 кв.м., 1/25 эт
Обзор№ - 13097
| Стоимость | 236 900 000 |
|---|---|
| Возможное назначение | Свободное назначение |
| Тип здания | Жилой дом |
| Тип парковки | В здании |
| Вход cian (avito) | Отдельный со двора |
| Тип сделки авито коммерческая | Продажа |
| Ремонт | Черновая отделка |
| Планировка cian | Смешанная |
| Планировка avito | Кабинетная |
| Отделка помещения коммерческая | Без отделки |
| Право собственности | Застройщик |
| Способ связи avito | По телефону и в сообщениях |
| Дополнительный тип объекта | Офис, Торговое помещение, Гостиница |
| Состояние cian | Требуется капитальный ремонт |
| Ремонт коммерческая | черновая отделка |
| Тип отопления cian | центральное газовое |
| Тип здания (Avito) | Жилой дом |
| Тип коммерческой | Помещение свободного назначения |
| Площадь, кв.м. | 1088 |
| Этаж | 1 |
| Этажность | 25 |
| Класс здания | A |
Адрес
| Населенный пункт | Казань |
|---|---|
| Район города | Московский |
| Улица | улица Шоссейная |
| Номер дома | 57 |
В избранное Помещение с НДС в премиум ЖК Atlantis Deluxe
Продается помещение в ЖК Atlantis Deluxe. С НДС!
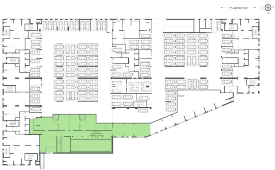
Площадь помещения 1088 кв м.
Помещение с отдельным входом на 1 этаже, имеет чашу для бассейна на 2 этаже. Размеры чаши 8*25 м.
Большие панорамные окна, высокие потолки 3.9 м.
Жилой комплекс премиум класса.
Atlantis Deluxe — эксклюзивный архитектурный проект на набережной реки Казанки.
В 5 минутах от центра на машине. Рядом метро Козья Слобода.
По всем интересующимся вопросам звоните вашему персональному менеджеру: Елена - брокер по коммерческой недвижимости . DiGroup (ДиГрупп)- недвижимость и финансы.
Без комиссии!

























