Продается помещение в новом густонаселенном благоустроенном жилом комплексе Станция Спортивная.
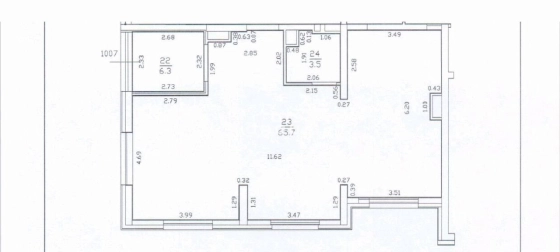
Помещение площадью 75 кв.м на 1 этаже с отдельным входом.
Дом сдан, заселен
Свободная планировка.
Мокрая точка.
1 этаж.
Электрическая мощность 15 кВт.
Высота потолков 3 м.
До центра 15-20 мин, до города 10 мин.
Очень перспективный современный большой густонаселенный жилой комплекс с красивыми дворами и домами.
По всем интересующимся вопросам звоните: Елена - брокер по коммерческой недвижимости DiGroup (ДиГрупп)- недвижимость и финансы.
Без комиссии!









