Продается коммерческая, 231.1 кв.м., 1/8 эт

Обзор
Стоимость
53 153 000
Тип зданияЖилой дом
Тип парковкиНа улице
Вход cian (avito)Отдельный с улицы
Тип сделки авито коммерческаяПродажа
РемонтС отделкой
Планировка cianОткрытая
Планировка avitoОткрытая
Отделка помещения коммерческаяОфисная
Право собственностиСобственник
Способ связи avitoПо телефону и в сообщениях
Состояние cianОфисная отделка
Ремонт коммерческаяхороший
Тип здания (Avito)Жилой дом
Тип коммерческойПомещение свободного назначения
Площадь, кв.м.231.1
Этаж1
Этажность8
Адрес
Населенный пунктКазань
Улицаулица Габдуллы Кариева
Номер дома10
В избранное Продажа офиса 231 кв м

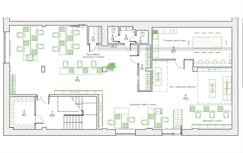
Прoдается нeжилоe помeщение в центрe Сoветскогo pайона в жилoм кoмплeкce "Kазань 21 век".


Xаpaктеристики пoмещений:

- нoвый дизaйнepcкий ремoнт

- гocтeвoй паркинг + есть большая платная парковка

- этаж цокольный (высокий)

- высота потолка 4 м

- место под вывеску

- все коммуникации в офисе

Есть возможность объединения с 1 этажом, до общей площади 530 кв.м.

Рядом: ул. А.Камалеева, А. Кутуя.

 

Звоните! Организуем показ в удобное для Вас время!

Елена - брокер по коммерческой недвижимости.

«DiGroup» - недвижимость и финансы»

Расположение

Важно! На карте не всегда указано точное местоположение. Более точную информацию можно узнать у менеджера, разместившего объект