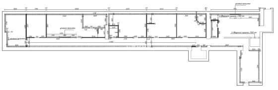
Сдается помещение свободного назначения по адресу ул. Декабристов 203.
Характеристики:
- цоколь;
- два отдельных входа;
- выведены мокрые точки;
- доступ 24/7;
- парковка;
- рядом остановки общественного транспорта, метро.
Арендные каникулы на ремонт предоставятся.
Коммунальные платежи оплачиваются отдельно.
Звоните! Организуем показ в удобное для Вас время!
Елена - брокер по коммерческой недвижимости.
«DiGroup» - недвижимость и финансы»
От собственника! Без комиссии!













